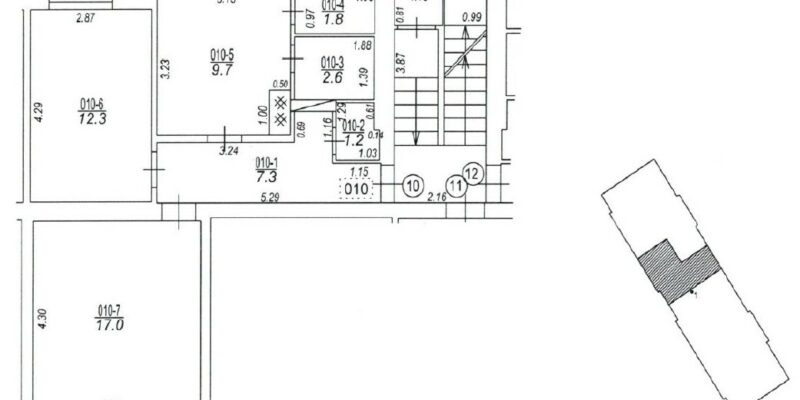
Pārdod nekustamo īpašumu – dzīvokli “Almāle 7” – 10, Almāle, Alsungas pagasts, Kuldīgas novads, 51.9 m²
Kuldīgas novada pašvaldība saskaņā ar Publiskas personas mantas atsavināšanas likumu pārdod elektroniskā izsolē ar augšupejošu soli Kuldīgas novada pašvaldībai piederošo dzīvokļa īpašumu “Almāle 7” – 10, Almāle, Alsungas pagasts, Kuldīgas novads (kadastra Nr. 62429000203). Īpašuma sastāvs: divistabu dzīvoklis ar platību 51,9 m2, kopīpašuma 5190/91210 domājamās daļas no daudzdzīvokļu dzīvojamās mājas ar kadastra apzīmējumu 62420090281001 un zemes vienības ar kadastra apzīmējumu 62420090281. Dzīvokļa īpašuma atsavināšanas nosacījumi pieejami izsoles noteikumos.
Nosacītā cena: 1900 EUR, drošības nauda: 190 EUR, izsoles solis 50 EUR. Izsole sākas elektronisko izsoļu vietnē https://izsoles.ta.gov.lv 2026. gada 21.aprīlī plkst. 13.00 un noslēdzas 2026. gada 21. maijā plkst. 13.00.
Personai, kura vēlas piedalīties izsolē, līdz 2026. gada 11.maija plkst. 23.59 jāiemaksā nodrošinājums 10% apmērā no izsolāmā objekta nosacītās cenas 190 EUR apmērā Kuldīgas novada pašvaldības pamatbudžeta kontā: Kuldīgas novada pašvaldība, reģ. Nr. 90000035590, SEB banka, kods UNLALV2X, konts LV26UNLA0011001130401, norādot “Almale 7-10, Alsungas pag., izsole”, un, izmantojot elektronisko izsoļu vietni, jānosūta lūgums izsoles rīkotājam autorizēt to dalībai izsolē. Nodrošinājums uzskatāms par iesniegtu, ja tas saņemts norādītajā kontā līdz 2026. gada 11. maija plkst. 23.59. Papildus jāveic dalības maksas 20 EUR apmērā apmaksa saskaņā ar elektroniskajā izsoļu vietnē elektroniski izrakstīto rēķinu.
Samaksas nosacījumi par nosolīto objektu: piedāvātā augstākā summa, ieskaitot iemaksāto nodrošinājumu, jāsamaksā par nosolīto nekustamo īpašumu 2 (divu) nedēļu laikā pēc izsoles noslēguma dienas.
Izsoles noteikumus un informāciju par dzīvokļa īpašumu var saņemt Kuldīgas novada pašvaldības informācijas centrā Baznīcas ielā 1, Kuldīgā, Kuldīgas novadā, pa tālruni 63350143 vai pa e-pastu dome@kuldiga.lv.
Almale_7_10_elektroniskas_izsoles_noteikumi
